Τουριστική μονάδα με χώρους διαμονής, εστίασης και αναψυχής στην Μαραθόπολη Μεσσηνίας
Εργοδότης: Ιδιώτης
Concept: Γιάννης Χατζηπαπαδόπουλος & Blue Dot Studio
Σχέδια και Render: Blue Dot Studio
Τοποθεσία: θέση «Γεφυράκι», Δήμος Τριφυλίας, Μεσσηνία
Συνολικό εμβαδό: 1.003,00m2
Χρόνος μελέτης: 2022
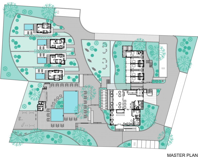
>Περιγραφή
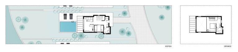
Το θέμα αφορά τον σχεδιασμό μιας πλήρους τουριστικής μονάδας που αποτελείται από μία ξενοδοχειακή μονάδα 11 δωματίων, τέσσερις σουίτες με πατάρι, φυτεμένο δώμα και ιδιωτική πισίνα στην κάθε μία, ρεσεψιόν, χώρο εστίασης, υπαίθριο μπαρ και πισίνες.
>Σχεδιασμός
Το συγκρότημα είναι προσανατολισμένο προς την θάλασσα. Οι μικρές υψομετρικές διαφορές εντός του οικοπέδου αξιοποιήθηκαν στο έπακρο ώστε όλα τα δωμάτια να έχουν θέα στην θάλασσα. Ο σχεδιασμός που πραγματοποιήθηκε αποτελείται από λιτές γραμμές και απλές γεωμετρίες στα κτίρια, δίνοντας ιδιαίτερη έμφαση στην λειτουργικότητα και την επικοινωνία των χώρων. Αφετηρία του σχεδιασμού υπήρξε το προϋπάρχον υφιστάμενο κτίριο, στα νοτιοανατολικά του οικοπέδου, το οποίο επανασχεδιάστηκε ως χώρος ρεσεψιόν και σε αυτό ενσωματώθηκε ένα νέο κτίριο εστίασης. Ο όγκος ολοκληρώθηκε με την ένταξη της ξενοδοχειακής μονάδας σε συνέχεια του ίδιου συγκροτήματος. Οι σουίτες τοποθετήθηκαν δυτικά και σε απόσταση ώστε να αποκτήσουν σχετική ιδιωτικότητα και να επιτευχθούν οι επιθυμητές θεάσεις προς την θάλασσα. Ενοποιητικό στοιχείο στην σύνθεση αποτέλεσε ο χώρος του υπαίθριου μπαρ με τις πισίνες, στον οποίο καταλήγουν κι όλες οι εσωτερικές πορείες ώστε να είναι προσβάσιμος από κάθε μεριά του οικοπέδου. Ιδιαίτερη έμφαση δόθηκε στον σχεδιασμό του υπαίθριου χώρου με δημιουργία πορειών, ζωνών πρασίνου, ζωνών με υγρό στοιχείο, χώρων υπαίθριων καθιστικών και ζώνη παιχνιδιού. Περιμετρικά οργανώθηκε η κίνηση των οχημάτων και οι θέσεις στάθμευσης τοποθετήθηκαν κοντά στους χώρους διαμονής.
