Γραφεία κατασκευαστικής εταιρείας, στην Πτολεμαΐδα
Εργοδότης:
Elite IKE
Σχεδιασμός, Μελέτη & Επίβλεψη: Blue Dot Studio
Τοποθεσία: Πτολεμαΐδα
Χρόνος μελέτης: 2025
>Περιγραφή
Το θέμα αφορά τον σχεδιασμό, την μελέτη και την υλοποίηση των κεντρικών
γραφείων κατασκευαστικής εταιρείας στην Πτολεμαΐδα.
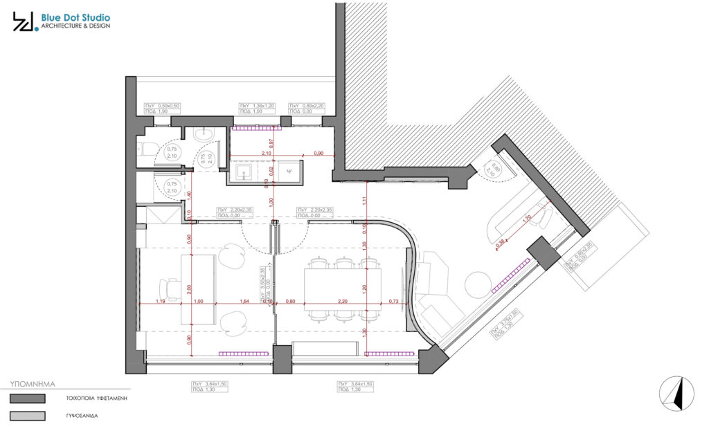
>Σχεδιασμός
Πρόκειται για τον σχεδιασμό των
κεντρικών γραφείων κατασκευαστικής εταιρείας που θα συμπληρώνει τα υφιστάμενα
γραφεία που υπάρχουν σε άλλο όροφο του ίδιου κτιρίου. Πιο συγκεκριμένα υπήρξε η
ανάγκη διαχωρισμού του χώρου εργασίας από τους χώρους συνάντησης πελατών και
συσκέψεων. Έτσι τα νέα γραφεία, περιλαμβάνουν έναν χώρο υποδοχής κοινού με
καθιστικό και γραμματεία, την αίθουσα γραφείου του διευθυντή της εταιρίας, την
αίθουσα συσκέψεων καθώς και βοηθητικούς χώρους, όπως μικρό κουζινάκι, αποθήκη
και wc.
>Υποδοχή
Η υποδοχή σχεδιάστηκε ως ένας χώρος λιτός και λειτουργικός. Ο επισκέπτης
μπαίνοντας στην αίθουσα αντικρίζει σε πρώτο πλάνο την γραμματεία και σε δεύτερο
τον καμπύλο κόκκινο τοίχο που δεσπόζει στο χώρο. Υπάρχει μικρό καθιστικό για
την αναμονή και gallery
wall με υλοποιημένα
έργα της εταιρείας. Στόχος ήταν η δημιουργία ενός χώρου με προσωπικότητα που να
παρέχει όλες τις πληροφορίες στον επισκέπτη και να κάνει την παραμονή του στο
χώρο ενδιαφέρουσα.
>Αίθουσες
Το μεγαλύτερο κομμάτι του σχεδιασμού αποτελούν οι δύο αίθουσες: το γραφείο του
διευθυντή και η αίθουσα συσκέψεων. Οι δύο αυτές αίθουσες επικοινωνούν μέσω της
συρόμενης τζαμαρίας που τις διαχωρίζει. Για τον λόγο αυτό, σχεδιαστικά
αντιμετωπίστηκαν ως μία ενιαία καθώς υπάρχει τόσο οπτική όσο και λειτουργική
συνέχεια. Η γραμμική προσέγγιση, οι πιο αυστηρές γραμμές και η μίνιμαλ επίπλωση
έχει ως αποτέλεσμα την δημιουργία χώρων συγκέντρωσης και παραγωγικότητας.
>Υλικά
Η χρωματική παλέτα που περιλαμβάνει τόνους λευκού, σκούρου γκρι και έντονου
κόκκινου, ακολουθώντας την αισθητική του brand name της εταιρίας, εμπνέει ένα
επαγγελματικό ύφος στο χώρο, δημιουργεί ενδιαφέρουσες αντιθέσεις και
αναδεικνύει τα σημεία του. Ιδιαίτερη έμφαση δίνεται στις ξύλινες επιφάνειες και
στον μινιμαλιστικό σχεδιασμό της επίπλωσης. Καθοριστικό ρόλο παίζει και η
μελέτη φωτισμού στην σύνθεση τόσο με κρυφούς φωτισμούς όσο και με φωτιστικά
σώματα, ράγες και σποτ ώστε να αναδείξουν κάθε τμήμα της πρότασης.
